About Operable Overhead Panels (Spiral Pivot) | Design Manual Page 11.xx

About Motorised Louvres in a Stand-Off Frame (Spiral Pivot) | Design Manual Page 11.xx

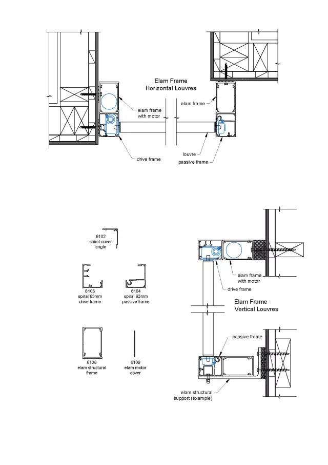
2D Typical Detail Motorised 2.28

2D Typical Detail Motorised 2.28

2D Typical Detail Hand Operable 2.29

3D Model

220/35 Vertical Retract Louvre_3 Sided_Stacked to One Side

3D Model

220/35 Vertical Retract Louvre_4 Sided_Stacked to Both Sides

3D Model

220/35 Vertical Retract Louvre_4 Sided_Stacked to One Side